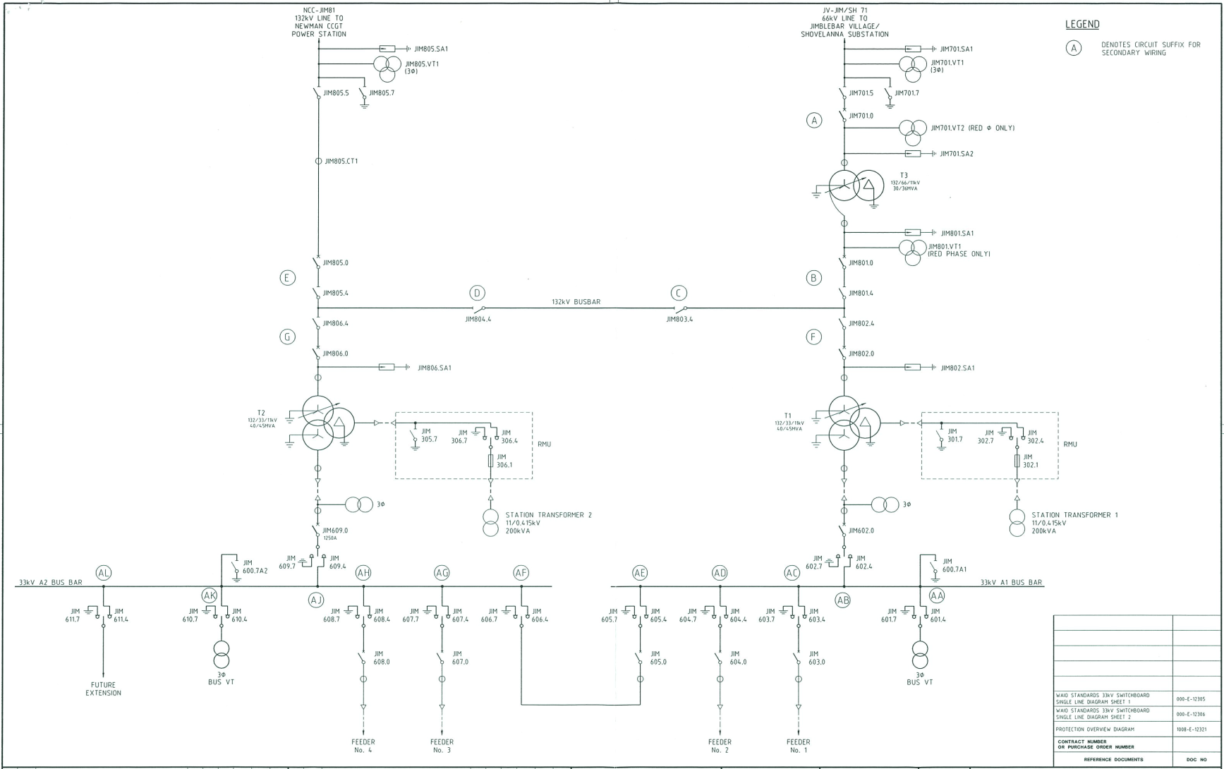
Single Line Diagram
 
            Primary Layout design
 
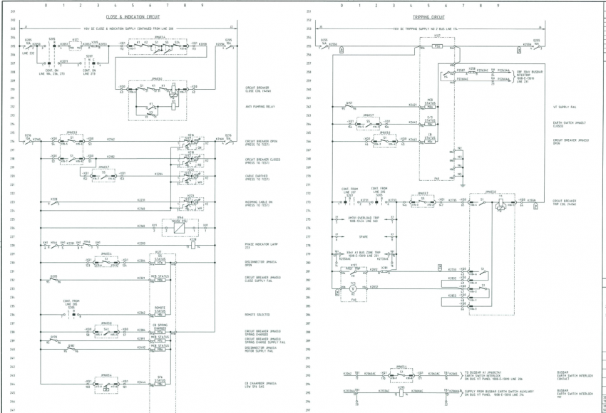
            Primary detail design
 
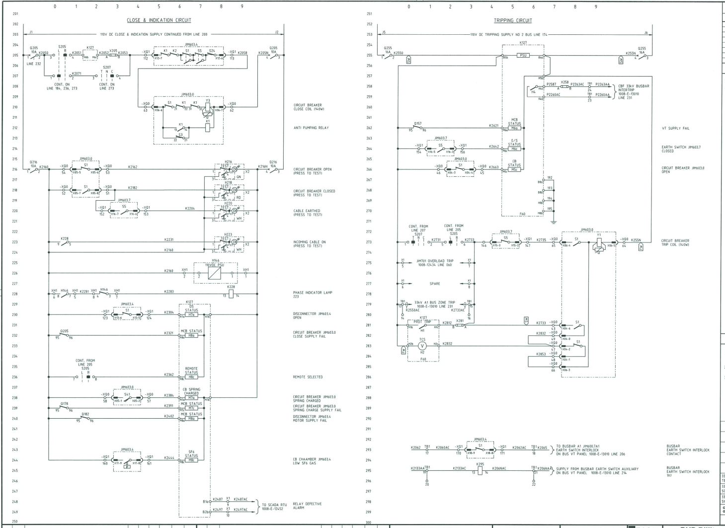
            Secondary design
 
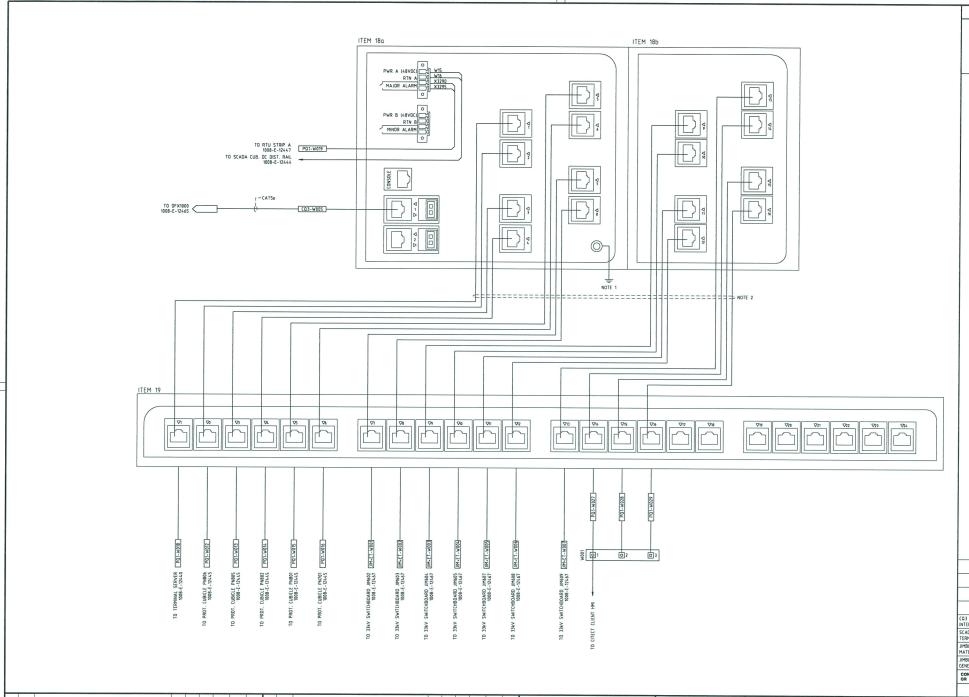
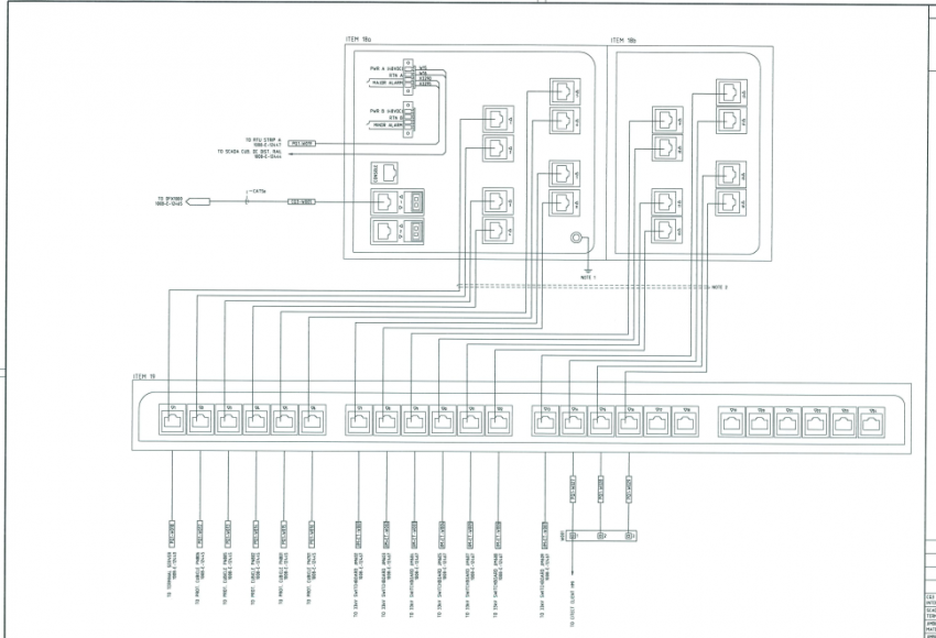
            Comms design
 
            Cabling and Termination
 
            





In transmission stations design and engineering, the activities can include from tender stage and high level basic design to detail engineering design, procurement and construction phase. We can assist you in these important stages by providing detail engineering support of transmission substations including primary, secondary, structural, communication and other involved engineering activities and drafting services.
